Frankfurter Str. 58
Kelkheim
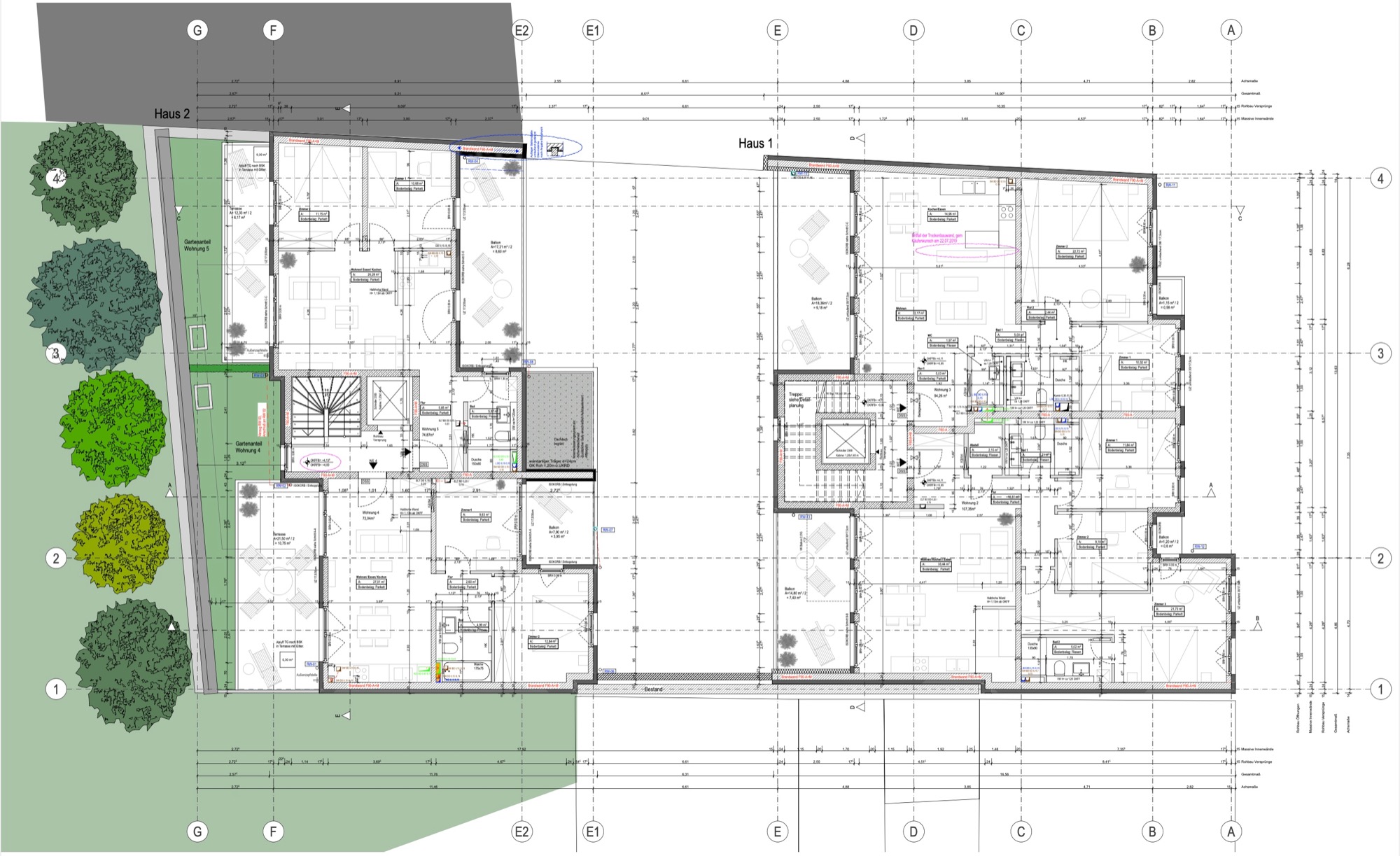
Auf dem Grundstück Frankfurter Straße 58 ist eine Wohnanlage bestehend aus 2 Mehrfamilienhäusern und Tiefgarage errichtet worden. Dabei sind 10 Stadtwohnungen mt je ca. 50-135 qm Wohnfläche entstanden. Jeder Wohneinheit sind großzügige Außenbereiche in Form von Terrassen, Balkonen oder Loggien zugeteilt.
Sämtliche Wohnungen sind komfortabel ab Tiefgarage mit Aufzug (und Treppenhaus) erschlossen. Im Untergeschoss des Vorderhauses befinden sich Keller- und Technikräume, in denen die Energieversorgung für beide Gebäude untergebracht ist, sowie Abstellmöglichkeiten für Fahrräder und Kinderwagen. Die Wohnungen in den obersten Geschossen sind als Maisonette-Wohnungen geplant. Im Untergeschoss und Erdgeschoss des Hinterhauses befindet sich die Tiefgarage/ das Parkdeck, welche über die Zufahrt von der Frankfurter Straße erschlossen werden.








